Mariposa 20
- Marca: Mariposa
- Revestimiento: metal
- Color: blanco, negro, gris, acero
Mariposa 20 (36 m²) – Casa modular plegable con entrega rápida
Descubre la eficiencia y confort de nuestra casa modular Mariposa 20. Con 2 dormitorios, cocina-salón y un baño completamente equipado, es una solución perfecta para quienes buscan un hogar compacto, funcional y estético.

Características principales:
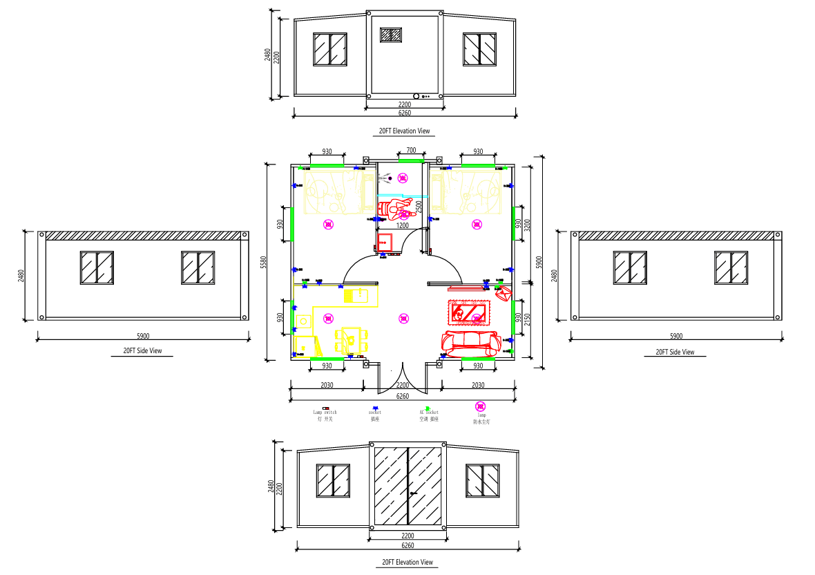
- Dimensiones en estado desplegado: largo 5900 mm, ancho 6300 mm, alto 2480 mm.
- Dimensiones en estado plegado: largo 5900 mm, ancho 2200 mm, alto 2480 mm.
- Peso: 3500 kg.
- Paredes: paneles sándwich de 75 mm de grosor con aislamiento EPS para una excelente eficiencia térmica.
Materiales de construcción:
Paneles sándwich:
• Superficies exteriores e interiores de chapa de acero galvanizado con recubrimiento protector.
• Aislamiento interior de lana mineral, que proporciona aislamiento térmico y acústico.
Interior de casa móvil


Dos dormitorios situados a la derecha, un baño y una cocina-salón.

Dos dormitorios situados en el centro, un baño y una cocina-salón.

Dos dormitorios situados a la izquierda, un baño y una cocina-salón.

Montaje rápido. Сasa lista en menos de 1 hora!

Video del proceso de montaje de la casa Mariposa 20
Instalaciones:
- Cableado eléctrico:
- En la entrada: cable de 6 mm².
- Para aire acondicionado: cable de 4 mm².
- Para enchufes: cable de 2,5 mm².
- Para iluminación: cable de 1,5 mm².
- Sistema de agua: Tuberías instaladas para conexión de fontanería y ducha.
- Todas las conexiones están centralizadas en un punto de acceso conveniente.
Equipamiento:
- Cocina totalmente equipada con mobiliario instalado (encimera de piedra para la preparación de alimentos, grifo de cocina y estante superior colgante para vajilla)
- Baño con termo eléctrico, lavabo y estante con espejo, cabina de ducha con grifo y ducha tipo lluvia.
- Luminarias y enchufes instalados en toda la vivienda.
- Posibilidad de elegir los materiales y colores para los revestimientos de suelos y paredes según sus preferencias.
Ventajas:
- Fácil y rápida instalación.
- Doble acristalamiento energéticamente eficientes
- Totalmente lista para usar.
- Compacta en estado plegado, facilitando su transporte.
Esta casa contenedor está diseñada para adaptarse a tus necesidades, ofrece comodidad y estilo en cualquier entorno. Solicita un presupuesto personalizado y transforma este espacio en el hogar que siempre has deseado.
Características principales:
- Dimensiones en estado desplegado: largo 5900 mm, ancho 6300 mm, alto 2480 mm.
- Dimensiones en estado plegado: largo 5900 mm, ancho 2200 mm, alto 2480 mm.
- Peso: 3500 kg.
- Paredes: paneles sándwich de 75 mm de grosor con aislamiento EPS para una excelente eficiencia térmica.
Entrega en España
Consulte los detalles con nuestros gerentes
Puede comprar cualquiera de las casas de nuestro catálogo en nuestro sitio web. Contáctenos y le asesoraremos y ayudaremos a hacer la elección








